Entre el Pabellón de Mecánica y el Pabellón de la Fundación los nuevos Laboratorios Experimentales se presentan como una única pequeña torre que se eleva solo dos plantas por sobre los edificios existentes con los siguientes objetivos: 1) Permitir y mantener la adecuada iluminación y ventilación de los locales de los edificios existentes contiguos. 2) Mejorar la iluminación de los locales de los nuevos laboratorios, obteniendo también mejores vistas norte-sur. 3) Configurar un edificio compacto de mínimo perímetro con el consecuente ahorro energético y de tendido de instalaciones. 4) Por último generar la nueva Plaza de los Laboratorios vinculando los tres edificios y configurando un lugar de encuentro de aspecto cambiante según las estaciones del año, gracias a las nuevas especies incorporadas. La plaza es entonces caracterizada por el nuevo edificio y el jardín público.
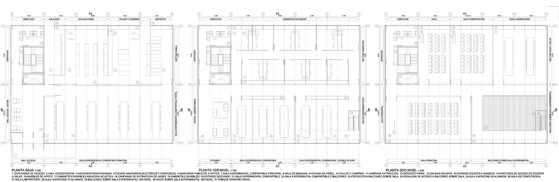
Sobre el nivel de planta baja se encuentran el hall de acceso con un espacio de estar y contemplación de la nueva plaza, próximo y de acceso franco se encuentra la sala principal de 200 m2 divisible en cuatro salas y contiguo a esta se encuentra el sector de pañol, depósitos, talleres y sala de máquinas, lo que posibilita el traslado directo de grandes equipos desde el exterior a la sala de máquinas y depósitos (a través del patio de servicios norte) y desde estos directamente a la sala de ensayos principal a través de grandes portones corredizos. Completan el nivel el núcleo vertical con ascensor-montacargas que posibilita el traslado de equipos y otorga la plena accesibilidad, sanitarios públicos y un pequeño office. En el primer nivel sobre el sectr sur se encuentran las dos salas de ensayo una de las cuales presenta doble altura, sobre el lado norte completan la planta gabinetes individuales de ensayos aislados acústicamente. Un sector de estar próximo al núcleo circulatorio sirve de área de descanso, contemplación y lectura. Por último en la segunda planta se completa el programa con aulas de capacitación principal, secundaria, computación y laboratorio y el balconeo a la sala de ensayo en el nivel inferior.
La volumetría y distribución programática propuesta permite la liberación y generación del espacio de la nueva plaza entre pabellones. Sobre dicha plaza de contemplación y encuentro, se incorporarán especies florales de aspecto cambiante a lo largo de las estaciones del año, se mantendrán las especies arbóreas existentes y se incorporará mobiliario junto a ellas. Un sistema de iluminación público de baja altura permitirá la iluminación de las especies bajas de la plaza y el recorrido de acceso a los laboratorios.
Proyecto:
Federico Marino, arq.
Colaboradores:
Matias Llere, Sebastian Cipolloni.
Asesores:
Estructuras: Ing. Stescovich.
Inst. Sanitaria: Arq. Beverati.
Inst. Electrica: Ing. Ansaldo.
Inst. Termomecánica: Ing.Gaviño / Ing. Nieto.
Paisajismo: Ing. Gonzalez.



