La especificidad del sitio, del que el nuevo edificio anexo forma parte, está signada por una serie de construcciones de uso residencial medio y edificios de uso terciario pertenecientes al casco histórico de la Ciudad de La Plata. Sobre un terreno de dimensiones medias y un tejido urbano de manzana irregular, el nuevo edificio busca dialogar entre la torre histórica de esquina de perímetro libre y un tejido consolidado entre medianeras.
Es ante esta situación que el nuevo edificio busca, mediante la estratégica inserción urbana, la respuesta al programa exigido, la normativa del código de edificación y las situaciones linderas, generar compensación para con el lugar que ocupa al tiempo que construir el paisaje del cual forma parte, intentando responder de este modo a la concepción de un edificio que satisfaga las necesidades contemporáneas de servicios terciarios públicos.
Sobre la cota cero, el edificio intenta expandir el espacio urbano, mediante sus cerramientos recedidos y la incorporación total de la planta baja para los usos públicos, incluyendo el jardín de fondo al paisaje peatonal preexistente.
A nivel intermedio y en diálogo directo con la torre de perímetro libre lindera, la planta gira en sus funciones públicas incorporando ahora un jardín elevado de uso y expansión exterior hacia el lateral de la torre existente, conformando un nuevo frente urbano conjunto al tiempo que contribuye a la iluminación -mediante la incorporación de lucernarios- al espacio público de la cota cero.
Estructura
Unos pocos elementos estructurales (sólo un par de columnas y el propio núcleo circulatorio) sirven para determinar y estructurar, en términos de ordenación, el espacio de las oficinas y programas anexos, permitiendo entre las losas alivianadas -libres de vigas- la intercambiabilidad de funciones de un edificio actual destinado a tal fin.
El leve desplazamiento del núcleo de la medianera lindera, no sólo permite mejorar las ventilaciones cruzadas sino la vinculación de todos los extremos de la planta, como así también generar la circulación de servicios, que evita la interrupción del normal funcionamiento del área de trabajo, y brinda iluminación adicional mediante las aperturas altas de aventanamientos sobre la fachada medianera.
Instalaciones eléctricas, de aire acondicionado, de iluminación e incendio se desplazan libremente entre losas, al tiempo que las instalaciones de corrientes débiles y datos lo realizan mediante los suelos técnicos elevados, dando así la posibilidad de distintas configuraciones -de acuerdo a requerimientos futuros- entre las plataformas de usos concebidas.
Cerramientos
La ubicación estratégica del edificio -recostado sobre la medianera lindera noreste-, las dimensiones y ubicación de los edificios preexistentes, la orientación solar y su correspondiente estudio durante las distintas estaciones del año, determinaron entre otros aspectos el sistema de cerramientos más apropiado a utilizar.
Mediante la simulación y estudio del solsticio y equinoccio a diferentes horarios y épocas, se concluye que la incidencia solar del edificio proyectado es relativa, indirecta y obstruida por las construcciones aledañas.
Es entonces que el sistema de cerramiento está compuesto, sencillamente, de perfilería de aluminio con refuerzos internos y dobles vidrios herméticos de baja emisividad y comportamiento acorde a las distintas orientaciones, de dimensiones y modulación que evitan desperdicios en los materiales y acompañan las posibles configuraciones de uso, con un sistema intercalado de módulos practicables para la ventilación natural.
Los cristales elegidos disponibles en el mercado local de máximas prestaciones y reducción de consumo energético promueven la iluminación natural, las visuales y la consecuente reducción de consumo energético en acondicionamiento térmico e iluminación artificial.
Una serie de persianas interiores de accionamiento manual/automático fabricadas en aluminio completa el sistema, otorgando la posibilidad de control de luz, visibilidad y privacidad requeridas para tales funciones.
El sistema elegido para los cerramientos comprende, un alto rendimiento, bajo mantenimiento e inversión inicial acorde al edificio requerido, desestimando cualquier otro sistema de dobles cerramientos, pasarelas externas y sistemas complejos, onerosos e innecesarios que no cumplirían con los requisitos para tal función y especificidad del sitio.
Programa
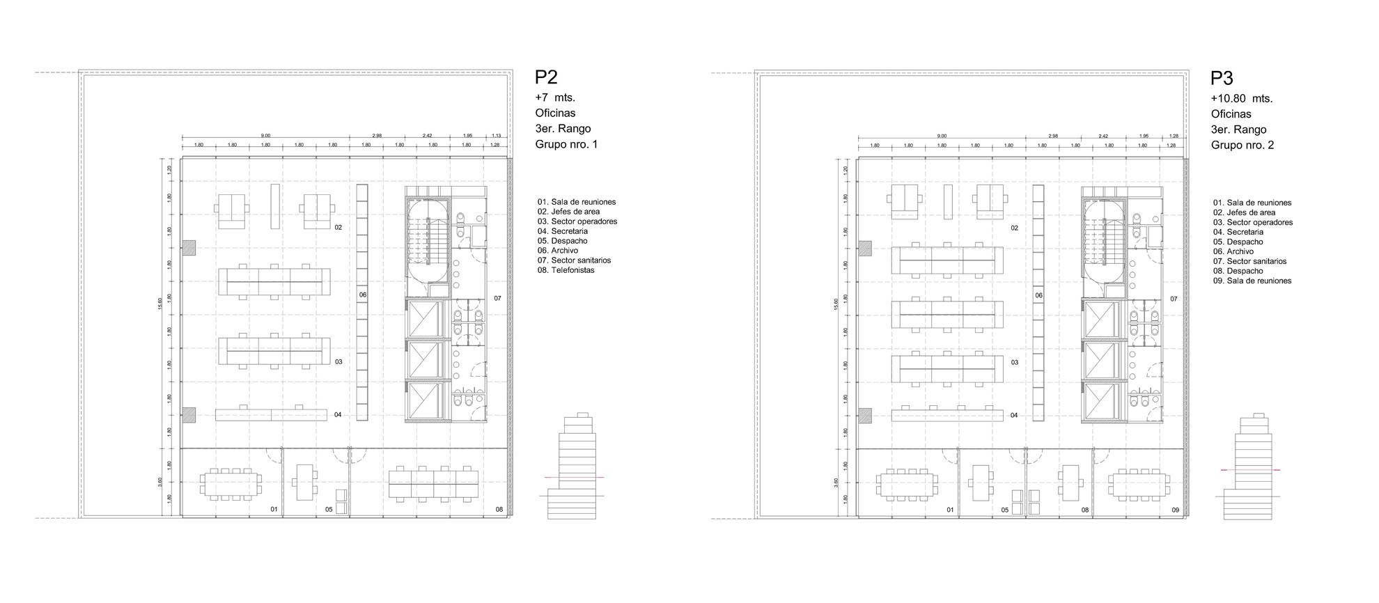
Sobre la estructura concebida, el programa naturalmente toma lugar en cada nivel de acuerdo a las agrupaciones y organigrama funcional requerido.
Sobre los subsuelos se organizan los estacionamientos y servicios generales de todo el edificio, en el nivel cero y en franca expansión del espacio público, los programas de consultas y acceso principal al edificio que se vinculan con el jardín lineal de expansión.
Sobre el nivel intermedio las salas de capacitación con su jardín lateral y áreas de consultas, completan el acceso semipúblico del edificio.
A partir de la cota superior de basamento, las oficinas de distintos rangos habitan los espacios, para finalmente dar lugar -en un retiro unificado, conectado internamente y de perímetro libre-, a las oficinas de los respectivos directores del organismo.
Intercambiabilidad
Todos los aspectos anteriormente descriptos, sistema de cerramientos -modulares homogéneos en todo el perímetro-, el sistema estructural -de mínimos elementos que promueven la liberación del espacio- y, el desarrollo de las instalaciones, buscan concebir la flexibilidad entendida como la posibilidad de intercambio y no como indefinición espacial, es decir la conformación de un ámbito inicial factible de futuras configuraciones.
Proyecto:
Federico Marino, arq. / Martin Torrado, Ligia Gaffuri, arqtos. asociados.
Colaboradores:
Matias Llere. Arq.
Noelia Garcia Lofredo. Arq.
Fernando Schapochnik. Arq.
Francisco Apa. Arq.
Asesores:
Estructuras: Ing. Stescovich.
Inst. Sanitaria: Arq. Beverati.
Inst. Electrica: Ing. Ansaldo.
Inst. Termomecanica: Ing. Gaviño / Ing. Nieto.












