La zona a la cual pertenece el predio del futuro Instituto Técnico Judicial se caracteriza por su ubicación estratégica central, rodeada de edificios administrativos de dependencias gubernamentales, presentándose estos como objetos exentos rodeados de vialidades que conectan la zona portuaria y administrativa con el resto de la ciudad.
Sobre un terreno de 45 x 85 mts., el nuevo edificio se concibe como un tercer objeto urbano junto al Tribunal de Casación Penal lindero al terreno y el Edificio de Correos hacia el borde suroeste. Un basamento y torre contendrán el programa del nuevo instituto, dicho basamento se extenderá sobre la totalidad del terreno disponible dando forma al vacío urbano anterior y posterior al Tribunal de Casación Penal, terminando de conformar así su plaza de acceso.
La torre se elevará por sobre el basamento y la vegetación existente alcanzando la altura del edificio lindero y desplazará su frente sobre la Av. Comodoro Py consolidando un único frente urbano, estableciendo de esta manera relaciones de forma visuales en todos los niveles del nuevo instituto para con su edificio lindero.
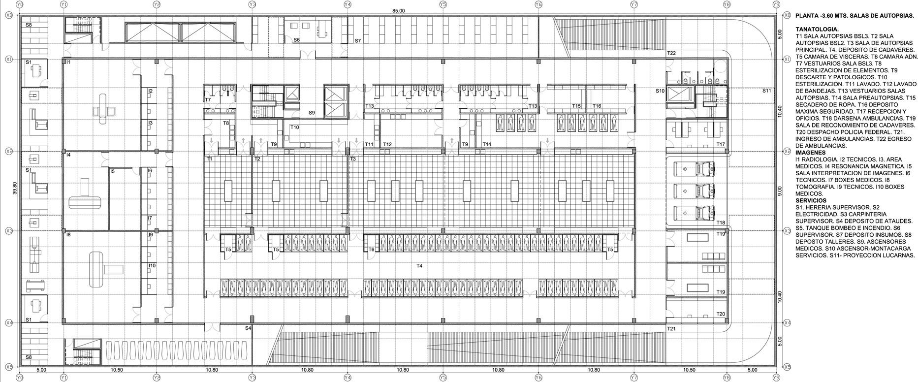
La organización interna del basamento y la ubicación relativa de la torre estarán determinadas por el patio interno que organizará el programa a su vez que dará iluminación natural a las salas de autopsias principales como así también los niveles superiores del basamento y permitirá a través de las vistas exteriores incorporar el interior del edificio al espacio urbano circundante.
La distribución programática del basamento responderá sobre sus niveles inferiores al movimiento vehicular tanto de público como de detenidos y cadáveres diferenciados por niveles de ingreso y egreso.
Un anillo de servicios (ubicado debajo del retiro del edificio) complementarios a las plantas inferiores del subsuelo como ser depósitos, talleres, salas de tratamiento de residuos y rampas de acceso servirán al segundo subsuelo y departamento de imágenes, depósitos e ingreso y egreso de cadáveres servirán al primer subsuelo respectivamente. Un sistema de lucarnas perimetrales dará luz natural a las zonas de trabajo ubicadas sobre el anillo de servicios.
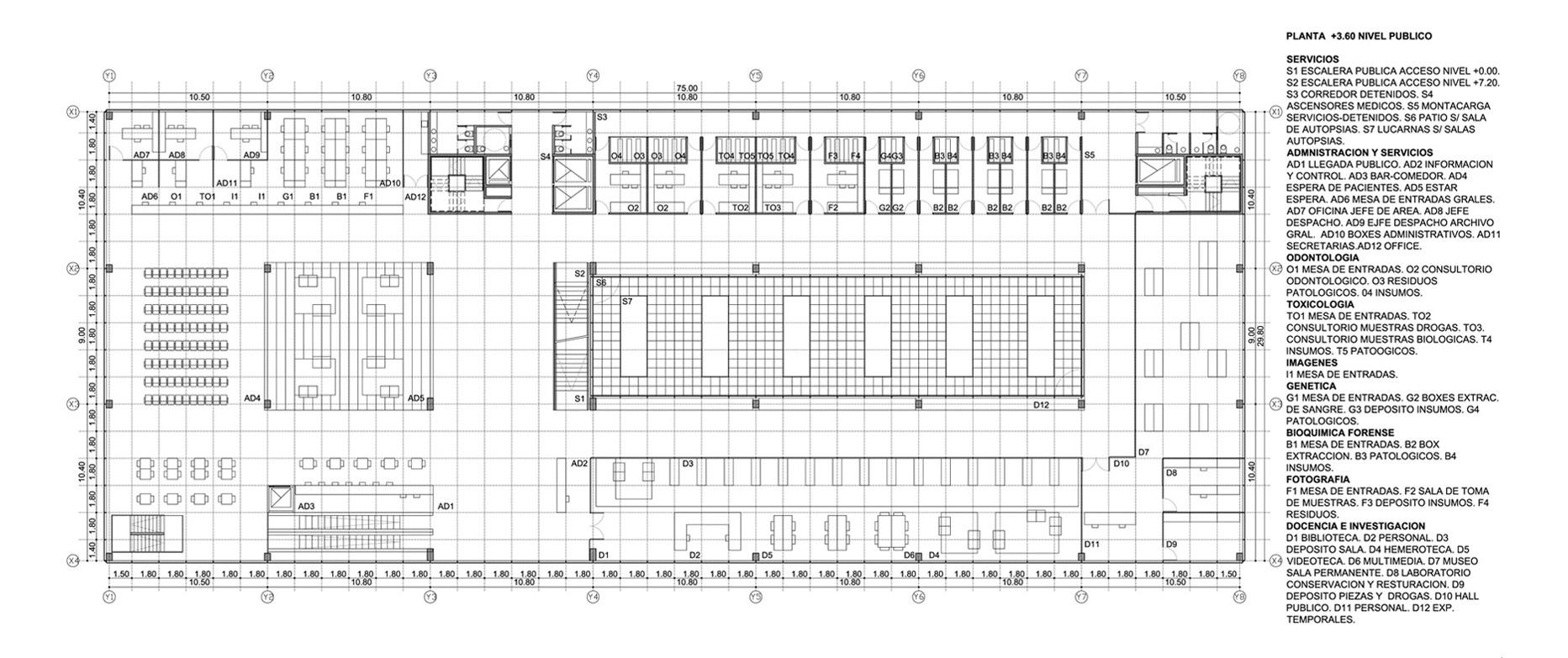
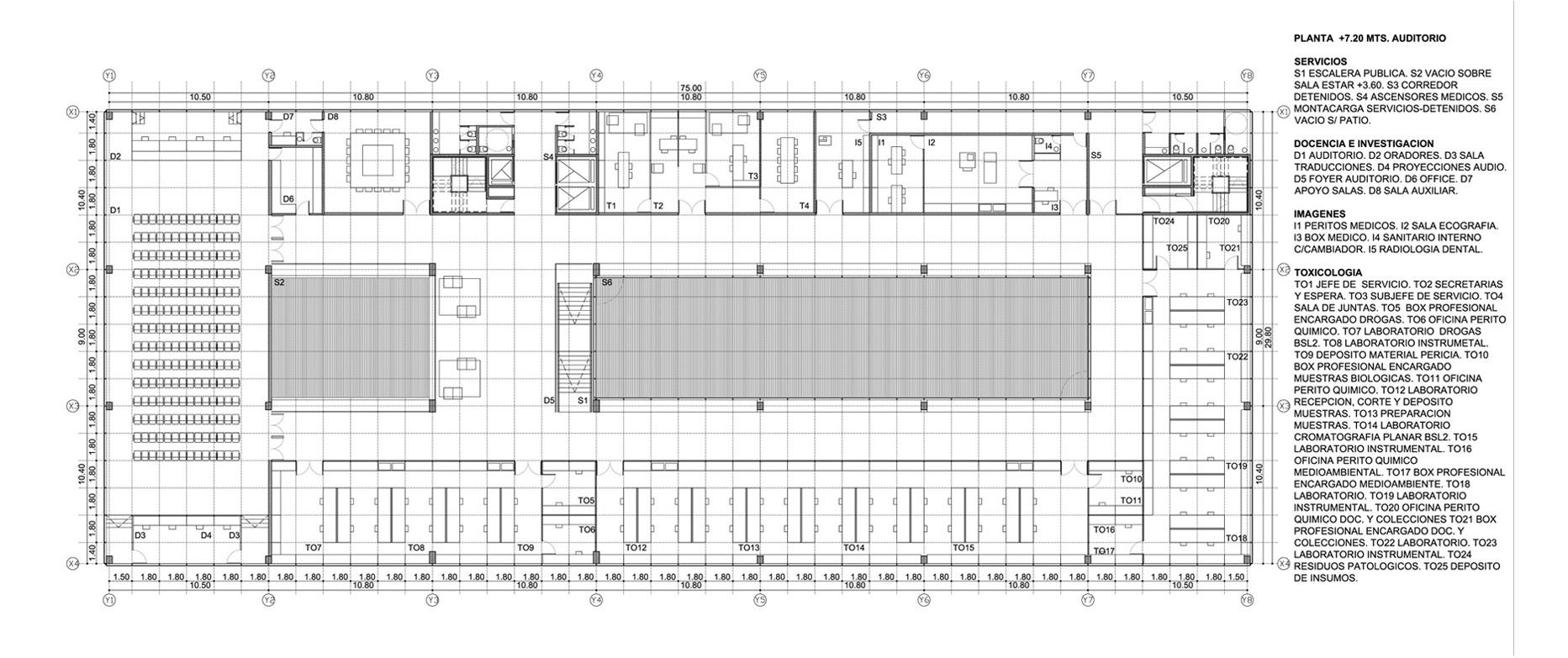
Los niveles superiores del basamento contendrán en su mayoría programa de uso público como ser museo / biblioteca / mesa de entradas sobre el primer nivel (+3.60mts). con vistas sobre el sector del río y la plaza del Edificio de Casación Penal lindero. Sobre el último nivel del basamento se ubicará el auditorio con vistas hacia la Av.Comodoro Py y con su respectivo foyer en situación de puente entre los vacíos del patio de salas de autopsias y patio cubierto sobre el sector Av.Comodoro Py respectivamente.
Entre los núcleos de la torre y el núcleo secundario de servicio se ubicarán programas de uso compartido (pacientes / detenidos) sobre el nivel inmediatamente superior e inferior a la planta de acceso pública (+3.60mts). lo cual facilitará el rápido y fácil acceso a las salas de muestras evitando largos recorridos, por parte de pacientes y detenidos con circulaciones diferenciadas.
Sobre el tercio del basamento cercano a la Av. Comodoro Py y en coincidencia con el frente del Tribunal de Casación Penal, se elevará la torre del instituto conteniendo los diversos departamentos administrativos y laboratorios como así también el área educacional de aulas en sus niveles inferiores, con la consecuente optimización de instalaciones, centralización de movimientos entre las salas de autopsias y los diferentes laboratorios y proporcionando iluminación y ventilación natural como así también visuales extendidas sobre el río y el paisaje de ciudad circundante.
Sobre el mismo lado del edificio se ubicará un núcleo de servicios secundarios que abastecerá el funcionamiento de la alcaidía ubicada en el segundo subsuelo y transportará los detenidos a través de una circulación diferenciada del publico por detrás de las salas de muestras en los distintos niveles. Dicho núcleo servirá para el abastecimiento desde los depósitos ubicados en subsuelos.
Un sistema de cerramientos de termopaneles de doble vidrio hermético y un sistema de tomas de aire exterior (para la recirculación de aire de las instalaciones) junto con el tratamiento de cristales según niveles y orientaciones (opacidades y serigrafiados) conformarán la imagen general del edificio con la consecuente economía de mantenimiento y durabilidad en el tiempo.
Proyecto:
Federico Marino, arq.
Colaboradores:
Matias Llere, Sebastian Cipolloni.
Asesores:
Estructuras: Ing. Stescovich.
Inst. Sanitaria: Arq. Beverati.
Inst. Electrica: Ing. Ansaldo.
Inst. Termomecánica: Ing.Gaviño / Ing. Nieto.
Equipamiento Hospitalario: Tec. Marcelo Lopez.











