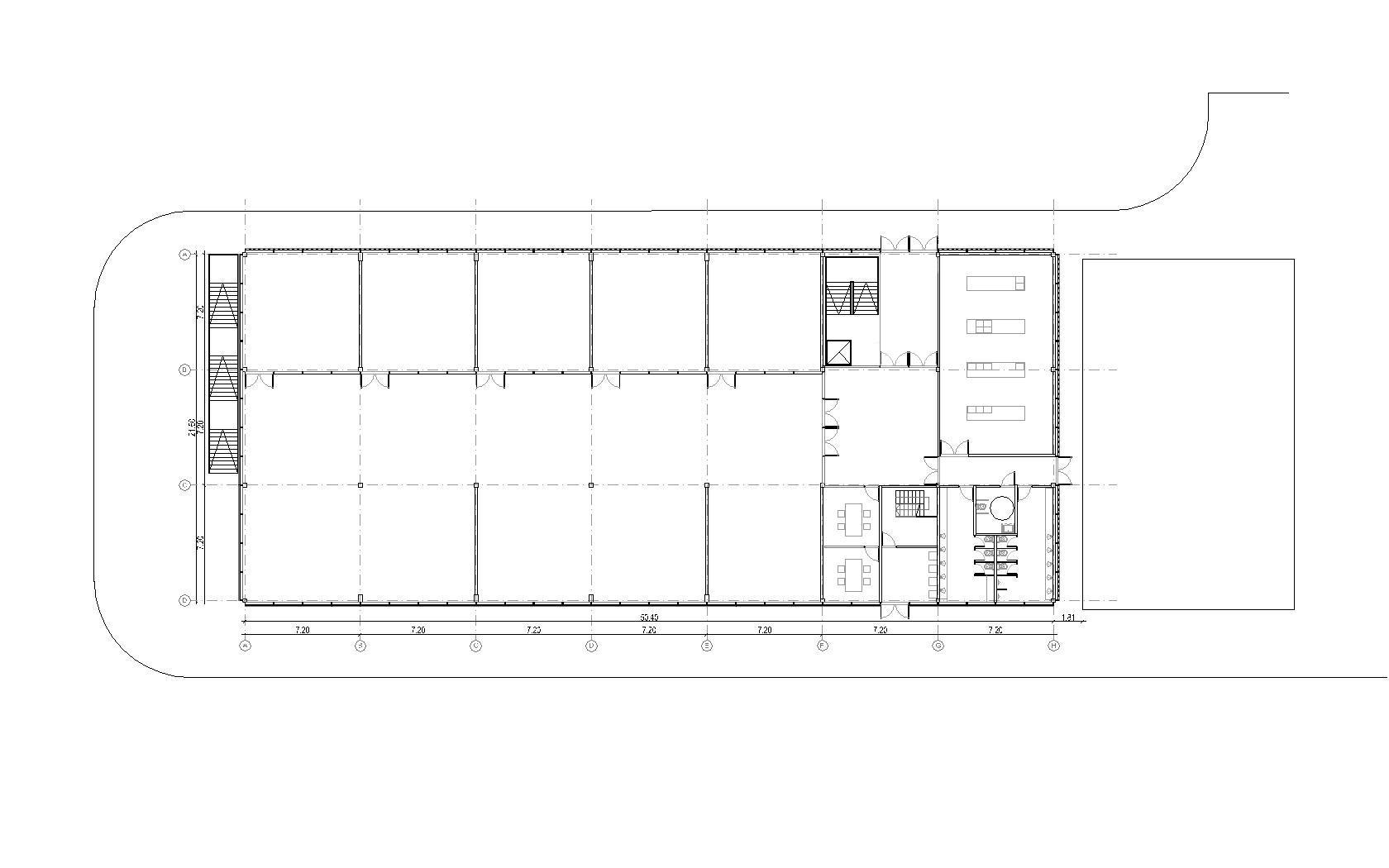
El edificio está ubicado sobre un predio correspondiente a un asentamiento habitacional precario, en proceso de reurbanización, y forma parte de un sistema de infraestructuras de equipamiento social, educativo y productivo localizadas en diversos asentamientos habitacionales en igualdad de condiciones.
Una estructura reversible, capaz de albergar actividades formativas, recreativas y productivas, a la vez que proporcionan un espacio de sociabilización para el barrio del cual forma parte el propio edificio.
Recuperar el valor del suelo mediante la terraza de variados usos, es uno de los objetivos de la propuesta, como así tambien promover estructuras que posibiliten el intercambio de funciones.






